Skip to Content

GEC QJ-Y-2-40D Overhead 2-Post Lift 4 Ton

https://www.gecuae.com/web/image/product.template/4643/image_1920?unique=8ac7947

Description:

The GEC QJ-Y-2-40D Overhead 2-Post Lift (4 Ton) is a heavy-duty and reliable lifting solution designed for professional workshops, service centers, and car care facilities. With a 4-ton lifting capacity and 2000mm lifting height, it provides safe, efficient vehicle access for inspections, repairs, and maintenance.

Built with a double S-shape column design (8 times bending), it offers superior strength and stability compared to older models. The double lock release system ensures safe operation, while the rubber-protected overhead bar automatically cuts off power when the vehicle roof reaches the limit — ensuring full protection.

Its baseless structure allows easy movement of equipment under lifted vehicles, and every unit is CE certified by the UK, having passed 115% dynamic and 150% static load tests.

Key Features:

  • 4-ton lifting capacity for a wide range of vehicles

  • Double S-shape column for extra strength and durability

  • Dual safety lock release for maximum security

  • Overhead design with rubber protection for safety cut-off

  • Baseless structure for easy equipment movement

  • Tested and CE certified for international standards

  • Ideal for car workshops, garages, and service centers

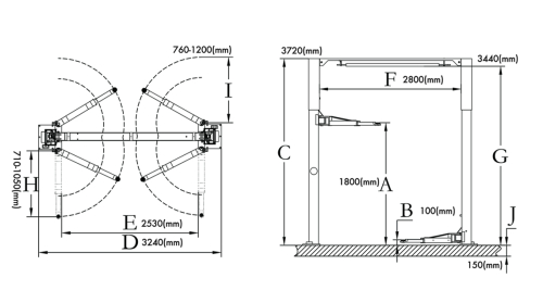
Specifications:

  • Lock/Release System: Double Point

  • Lifting Capacity: 4000 kg (9000 lb)

  • Lifting Height: 2000 mm (70.9")

  • Width Between Columns: 2800 mm (110")

  • Arm Reach Front: 710–1050 mm (27.9”–41.3”)

  • Arm Reach Rear: 760–1200 mm (29.9”–47.2”)

  • Limit Switch Height: 3440 mm (135.4”)

  • Concrete Thickness: 150 mm (5.9”)

  • Lifting Time: 50 s

  • Motor Power: 2.2 kW (3 HP)

  • Weight: 610 kg

0.00 د.إ 0.0 AED 0.00 د.إ

Not Available For Sale

This combination does not exist.

General Product

Terms and Conditions
30-day money-back guarantee
Shipping: 2-3 Business Days